Đặc điểm nổi bật Khu Công Nghiệp Diên Phú. Khu công nghiệp Diên Phú được được thành lập theo Quyết định của UBND tỉnh Khánh Hòa năm 2004 về quy hoạch cụm công nghiệp.
Khu công nghiệp Diên Phú có diện tích quy hoạch dự kiến là 43,8 ha, thu hút 27 dự án đầu tư đã đi vào hoạt động. Là cụm công nghiệp tập trung, đa ngành nhưng ưu tiên là công nghiệp sạch không gây ô nhiễm, cho thuê nhà xưởng.
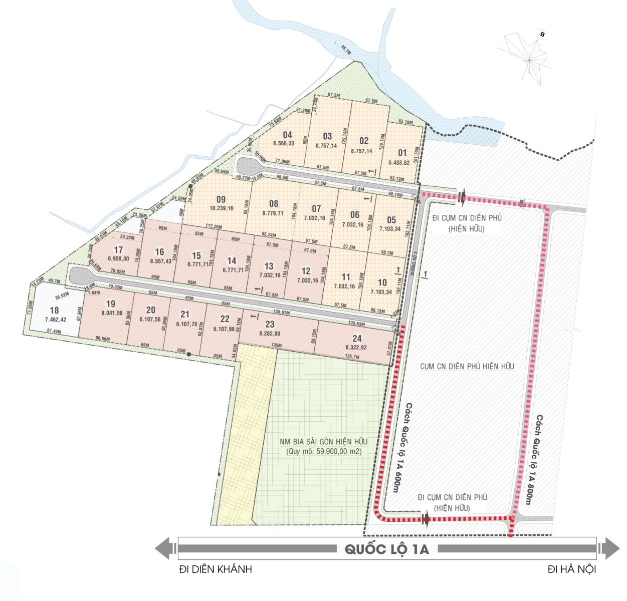
Khu công nghiệp Diên Phú thuộc địa bàn xã Diên Phú, huyện Diên Khánh, tỉnh Khánh Hòa. Là điều kiện rất thuận lợi cho lưu thông, hoạt động của CCN, KCN. Từ đó thu hút đông đảo người lao động từ các tỉnh đổ về các khu cho thuê nhà xưởng hứa hẹn sẽ mang đến nguồn nhân lực có trình độ cao cho khu công nghiệp miền Trung.

Với lợi thế đó mà cho thuê kho hay nhà xưởng cho thuê cũng đang là 1 hình thức kinh doanh tại các cụm công nghiệp, mang lại lợi nhuận cho chủ đầu tư cũng như phát triển kinh tế nước ta.
Khu công nghiệp Diên Phú có tổng diện tích đất 43,8 ha, tất cả các dự án đều đi vào hoạt động, đạt tỷ lệ lấp đầy 100%.Vốn đầu tư được Nhà nước hỗ trợ. Tổng vốn đầu tư hạ tầng khoảng 58,8 tỷ đồng. Và được điều hành và quản lý bởi BQL Khu công nghiệp. Hiện tại cho thuê kho đang được đẩy mạnh chính sách ưu đãi thu hút các nhà đầu tư tại đây. Cơ sở hạ tầng của cụm công nghiệp được xây dựng cách đồng bộ hóa, nhiều tính năng, theo tiêu chuẩn của quốc tế. Trong đó có:
Hệ thống điện được sử dụng là Từ trạm biến áp 110 KV. Bố trí trong CCN 01 trạm biến áp 110/220 KV. Lắp đặt 03 trạm biến áp 22/0,2 KV. được đáp ứng nguồn điện theo yêu cầu sử dụng một cách ổn định.
Hệ thống nước đáp ứng đủ nhu cầu sinh hoạt cũng như các hoạt động sản xuất khác với công suất 000m3/ngày đêm và được cung cấp từ Công ty Cổ phần Cấp thoát nước Khánh Hòa.

Hệ thống thoát nước được thiết kế riêng phần thoát nước mưa và nước thải riêng.
Nước thải từ những nhà máy trong cụm công nghiệp cũng như sinh hoạt sẽ được xử lý rác thải tập trung với công suất lớn sau đó mới được thải ra ngoài tự nhiên.
Dịch vụ viễn thông được lắp đặt hệ thống của mạng lưới của VNPT theo tiêu chuẩn quốc tế, tiên tiến giúp liên lạc cả trong nước lẫn ngoài nước.
Đường giao thông gồm có đường nội bộ 2 làn 24- 28m và đường chính 4 làn 35m đảm bảo cho các xe có phân khối lớn có thể đi vào. Trong tương lai sẽ có tuyến đường mới xây dựng đi qua khu vực.
Hệ thống cây xanh được phủ theo tiêu chí xanh – sạch – đẹp trong hu công nghiệp Khánh Hòa hạn chế tác động tới môi trường nhà xưởng cho thuê.
Hệ thống phòng cháy chữa cháy được lắp cạnh hệ thống nước sạch nhằm đảm bảo tính an toàn cho cụm công nghiệp.
Khu công nghiệp Diên Phú là cụm công nghiệp đa ngành sản xuất ngành công nghiệp sạch, nhằm hạn chế tác động đến môi trường: Sản xuất gia công các sản phẩm cơ khí, sản xuất hàng thủ công mỹ nghệ, trang trí nội thất, bàn ghế, tủ khung nhôm, cửa nhôm, các hệ thống thông gió, hệ thống điều hòa, dụng cụ thể thao, các sản phẩm xây dựng từ đá granit, chế biến nông sản, sản xuất bia các loai, may mặc, phụ liệu ngành may, sản xuất oxy, chiết nạp gaz. kinh doanh cho thuê kho xưởng.
Diện tích cho thuê: Thỏa thuận
Thời gian hoạt động: dự kiến là 50 năm kể từ lúc cấp quyền

Khu công nghiệp Diên Phú tập trung vào việc phát triển thành cụm công nghiệp hàng đầu của cả nước.Thu hút được lực lượng lao động đông đảo. Vì thế các tiện ích và dịch vụ phải được đặt nên hàng đầu tại nơi cho thuê kho xưởng.
Nhằm đảm bảo quyền lợi của người lao động:
Văn phòng hành chính, nhà điều hành
Có ATM của ngân hàng, bưu điện
Hệ thống bảo vệ nghiêm ngặt
Hệ thống điện nước, các cửa hàng,..
Phòng khám sức khỏe
Có nơi cư trú cho người lao động
Kho vận, trạm cung cấp nhiên liệu
Đồn công an, cục hải quan thuế
Bãi đỗ xe